咨询热线
88888888518
电动闸阀广泛应用于水利、建筑、消防、电力、环保、石油、化工、医药等各个领域。主要用途高中压法兰连接的闸阀适用于公称压力PN1.6~16.0MPa, 工作温度≤-29℃~550℃的石油、化工、水力、火力电站各种系统的管路上,切断或接通管路介质。适用介质为:水、油品、蒸气、及酸、碱、氨、尿素、含硫天然气等。
阀门配DZW型多回转阀门电动执行器
DZW型多回转阀门电动装置技术条件和性能参数
环境温度:-20~60℃
相对湿度:不大于95%(25℃时)
工作环境:无易燃易爆和强腐蚀介质
防护等级:IP55
电源:-380V50Hz(特殊要求可在订货时提出)
Z941H电动闸阀主要零件材料及主要用途
阀体 | 阀盖 | 阀板 | 阀座 | 阀杆 | 填料 | 适用介质 | 适用温度(≤℃) |
WCB | WCB+D507MO | D577 | 2Crl3 | 柔性石墨 | 水、油品、蒸汽 | 425 | |
ZGlCr5MO | ZGlCr5M0+Stellite12 | 1Crl8Ni9+Stellite6 | 25Cr2M01VA | 柔性石墨 | 水、油品、蒸汽 | 550 | |
ZGlCrl8Ni9Ti | Crl了Ni2 | 1Crl8Ni9+Stellite6 | 1Crl8Ni9Ti | PTFE | 硝酸类、碱类 | 200 | |
ZG00Crl7Nil4M02 | 316L+Stellite12 | 316L+Stel1ite6 | 316L | PTFE | 尿素、甲铵液、磷酸 | 200 | |
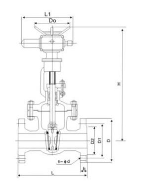
电动闸阀主要外形尺寸、连接尺寸及质量
公称压力PN(MPa) | 公称通径DN(mm) | 标准值 | 参考值 | 电装型号 | ||||||||||
L | D | D1 | D2 | D6 | b | f | f1 | Z-φd | L1 | H | 质量(kg) | |||
1.6 | 50 | 250 | 160 | 125 | 100 | 16 | 3 | 4-φ18 | 590 | 678 | 90 | DZWl0A | ||
65 | 265 | 180 | 145 | 120 | 18 | 3 | 4-φ18 | 590 | 693 | 96 | DZWl5A | |||
80 | 280 | 195 | 160 | 135 | 20 | 3 | 8-φ18 | 590 | 755 | 108 | DZW20A | |||
100 | 300 | 215 | 180 | 155 | 20 | 3 | 8-φ18 | 590 | 820 | 126 | DZW20A | |||
150 | 350 | 280 | 240 | 210 | 24 | 3 | 8-φ23 | 590 | 994 | 199 | DZW20A | |||
200 | 400 | 335 | 295 | 265 | 26 | 3 | 12-φ23 | 590 | 1138 | 254 | DZW30A | |||
250 | 450 | 405 | 355 | 320 | 30 | 3 | 12-φ25 | 810 | 1409 | ?310 | DZW45A | |||
300 | 500 | 460 | 410 | 375 | 30 | 4 | 12-φ25 | 810 | 1588 | 391 | DZW60 | |||
350 | 550 | 520 | 470 | 435 | 34 | 4 | 16-φ25 | 830 | 1755 | 729 | DZW90 | |||
400 | 600 | 580 | 525 | 485 | 36 | 4 | 16-φ30 | 830 | 1902 | 992 | DZWl20 | |||
450 | 650 | 640 | 585 | 545 | 40 | 4 | 20-φ30 | 870 | 214l | 1168 | DZWl80 | |||
500 | 700 | 705 | 650 | 608 | 44 | 4 | 20-φ34 | 870 | 2276 | 1222 | DZW250 | |||
600 | 800 | 840 | 770 | 718 | 48 | 5 | 20-φ41 | 870 | 2474 | 1376 | DZW250 | |||
2.5 | 50 | 250 | 160 | 125 | 100 | 20 | 3 | 4-φ18 | 590 | 678 | 95 | DZWl0A | ||
65 | 265 | 180 | 145 | 120 | 22 | 3 | 4-φ18 | 590 | 693 | 99 | DZWl5A | |||
80 | 280 | 195 | 160 | 135 | 22 | 3 | 8-φ18 | 590 | 755 | 113 | DZW20A | |||
100 | 300 | 230 | 190 | 160 | 24 | 3 | 8-φ23 | 590 | 820 | 132 | DZW20A | |||
150 | 350 | 300 | 250 | 218 | 30 | 3 | 8-φ25 | 590 | 934 | 206 | DZW30A | |||
200 | 400 | 360 | 310 | 278 | 34 | 3 | 12-φ25 | 590 | 1138 | 257 | DZW30A | |||
250 | 450 | 425 | 370 | 332 | 36 | 3 | 12-φ30 | 810 | 1409 | 317 | DZW45A | |||
300 | 500 | 485 | 430 | 390 | 40 | 4 | 16-φ30 | 810 | 1588 | 412 | DZW60A | |||
350 | 550 | 550 | 490 | 448 | 44 | 4 | 16-φ34 | 830 | 1750 | 750 | DZW90 | |||
400 | 600 | 610 | 550 | 505 | 48 | 4 | 16-φ34 | 830 | 1902 | 1042 | DZWl20 | |||
450 | 650 | 660 | 600 | 555 | 50 | 4 | 20-φ34 | 870 | 2141 | 1275 | DZWl20 | |||
500 | 700 | 730 | 660 | 610 | 52 | 4 | 20-φ41 | 870 | 2276 | 1420 | DZWl80 | |||
600 | 800 | 840 | 770 | 718 | 56 | 5 | 20-φ41 | 870 | 2474 | 1522 | DZW250 | |||
4.0 | 50 | 250 | 160 | 125 | 100 | 88 | 20 | 3 | 4 | 4-φ18 | 590 | 69l | 95 | DZWl0A |
65 | 280 | 180 | 145 | 120 | 110 | 22 | 3 | 4 | 8-φ18 | 590 | 711 | 102 | DZWl5A | |
80 | 310 | 195 | 160 | 135 | 12l | 22 | 3 | 4 | 8-φ18 | 590 | 775 | 115 | DZW20A | |
100 | 350 | 230 | 190 | 160 | 150 | 24 | 3 | 4.5 | 8-φ23 | 590 | 871 | 163 | DZW20A | |
150 | 450 | 300 | 250 | 218 | 204 | 30 | 3 | 4.5 | 8-φ25 | 590 | 1028 | 219 | DZW30A | |
200 | 550 | 375 | 320 | 282 | 260 | 38 | 3 | 4.5 | 12-φ30 | 590 | 1325 | 373 | DZW45A | |
250 | 650 | 445 | 385 | 345 | 313 | 42 | 3 | 4.5 | 12-φ34 | 810 | 1400 | 480 | DZW60A | |
300 | 750 | 510 | 450 | 408 | 364 | 46 | 4 | 4.5 | 16-φ34 | 830 | 1653 | 686 | DZW90 | |
350 | 850 | 570 | 510 | 465 | 422 | ? | 4 | 5 | 16-φ41 | 870 | 179l | 1021 | DZWl20 | |
400 | 950 | 655 | 585 | 535 | 474 | 58 | 4 | 5 | 20-φ4l | 870 | 2092 | 1450 | DZWl80 | |
500 | 1150 | 755 | 670 | 612 | 576 | 62 | 4 | 5 | 20-φ4l | 1170 | 2465 | 2150 | DZW250 | |
6.4 | 50 | 250 | 175 | 135 | 105 | 88 | 26 | 3 | 4 | 4-φ18 | 590 | 790 | 102 | DZWl5A |
65 | 280 | 200 | 160 | 130 | 110 | 28 | 3 | 4 | 8-φ18 | 590 | 840 | 106 | DZW20A | |
80 | 310 | 210 | 170 | 140 | 12l | 30 | 3 | 4 | 8-φ18 | 590 | 890 | 123 | DZW20A | |
100 | 350 | 250 | 200 | 168 | 150 | 32 | 3 | 4.5 | 8-φ23 | 590 | 1020 | 154 | DZW30A | |
150 | 450 | 340 | 280 | 240 | 204 | 38 | 3 | 4.5 | 8-φ25 | 590 | 1290 | 317 | DZW30A | |
200 | 550 | 405 | 345 | 300 | 260 | 44 | 3 | 4.5 | 12-φ30 | 590 | 1475 | 437 | DZW45A | |
250 | 650 | 470 | 400 | 352 | 313 | 48 | 3 | 4.5 | 12-φ34 | 810 | 1500 | 606 | DZW60A | |
300 | 750 | 530 | 460 | 412 | 364 | 54 | 4 | 4.5 | 16-φ34 | 830 | 1820 | 732 | DZW90 | |
Z941H电动闸阀结构图:
